谷町四丁目駅も谷町六丁目駅もどちらも使える便利な立地です!
news
2026.03.06
- ブルーのニュース
谷町四丁目・谷町六丁目駅から徒歩4分【S-RESIDENCE谷町五丁目】です!
外観

共用部


室内写真












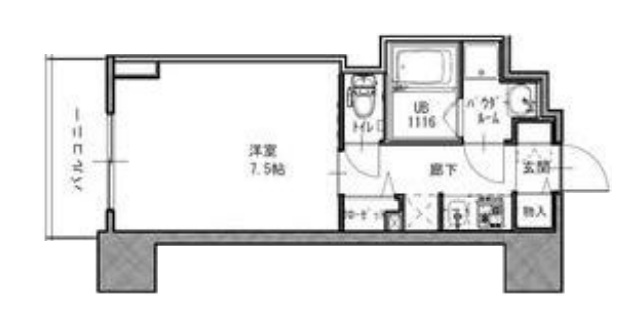
間取り(1K 24.78㎡)

🚉 2駅3路線のマルチアクセス
- 駅近の利便性: Osaka Metro谷町線・中央線「谷町四丁目駅」から徒歩4分、さらに谷町線・長堀鶴見緑地線「谷町六丁目駅」からも徒歩4分という、2駅が利用可能な好立地です。
- 主要都市へダイレクト: 本町、心斎橋、東梅田といった主要ビジネス街や繁華街へ乗り換えなしでアクセスでき、通勤・通学に非常に便利です。
🛡️ 高いセキュリティと充実の設備
- 安心の防犯体制: オートロック、防犯カメラ、TVモニター付きインターホンを完備しており、一人暮らしの方も安心して暮らせる環境が整っています。
- 利便性を高める共用設備: 忙しい方に嬉しい24時間ゴミ出し可能な敷地内ゴミ置き場や、不在時でも荷物を受け取れる宅配ボックスが設置されています。
- 快適な室内環境: 浴室乾燥機、シャワートイレ、システムキッチン(2口コンロ)に加え、インターネット無料という点も大きなメリットです。
🏙️ 暮らしやすさと周辺環境
- 買い物環境が良好: 徒歩圏内に「デイリーカナート(スーパー)」や「スギ薬局」があり、日用品の買い物に困りません。さらにドン・キホーテも徒歩圏内にあり、利便性が抜群です。
- 治安の良い落ち着いたエリア: 谷町五丁目周辺は、中央区の中でも繁華街から離れており、犯罪率が低く落ち着いた住宅街として評価されています。
- ペットと一緒に暮らせる: 希少なペット飼育相談可能な物件(小型犬や猫など)であり、動物好きの方にも選ばれています。
賃料 74,000円
共益費 13,000円
礼金 74,000円
中央区・天王寺区でお部屋を探されている方はぜひブルー不動産にご連絡ください♪